הויפט בלאט באריכט חצה"ק ראחמיסטריווקא וויליאמסבורג שליסט מקח אויף ריזן בנין אין שטאט פאר נייע ביהמ"ד הגדול לתורה ולתפילה

חצה"ק ראחמיסטריווקא וויליאמסבורג שליסט מקח אויף ריזן בנין אין שטאט פאר נייע ביהמ"ד הגדול לתורה ולתפילה

געשריבן דורך admin

זונטאג פ' פקודי • ל' אדר א' תשפ"ד | בחצרות הקודש

שטייענדיג בלויז געציילטע וואכן זינט ווען כ"ק אדמו"ר מראחמיסטריווקא וויליאמסבורג שליט"א איז נעתר געווארן לבקשתם פון די חסידים, זיך אריבערציען אין פראווענען אין שטאט וויליאמסבורג, ווערט אויפגענומען די פרייליכע בשורה מטעם הקהילה און דעם רבינ'ס שטוב, אז אין די יעצטיגע טעג איז בשעה טובה ומוצלחת געשלאסן געווארן די מקח אפצוקויפן א הערליכע גרויסע בנין אין צענטער פון שטאט וויליאמסבורג, וואו די בית המדרש וועט זיך בקרוב אריבערציען אל המנוחה ואל הנחלה, אינעם זעלבן בנין וואו עס וועט ווערן צוגערישט א באקוועמע דירה פארן רבי'ן שליט"א וועלכער איז ערווארטעט אין די נאנטע תקופה זיך אריבערצוציען קיין וויליאמסבורג.

דאס קומט נאכדעם וואס די ביז יעצטיגע בית המדרש דחסידי ראחמיסטריווקא ביים ווינקל פון ווייט עוועניו און קיעפ סטריט, איז היבש קליין צר מהכיל, און האט נישט די מעגליכקייט אריינצונעמען א קביעות'דיגע רעבישע הויף מיט תפילות און טישן תמידין כסדרן. אין די לעצטערע וואכן איז די הנהלת הקהילה געזעסן אויף פארשידענע פלענער צו מרחיב זיין די גבולי הקדושה, און פלאנירט ארויסצונעמען א אייגענע בנין לצרכי הקהילה און דעם רבינ'ס שטוב, ווען אויף צייטווייליג איז די בית המדרש געווארן איינקוואטירט אינעם זעלבן בנין אין היכל ישיבת מבוא התלמוד וואס איז פיל גרעסער ווי די ביז יעצטיגע היכל בית המדרש.

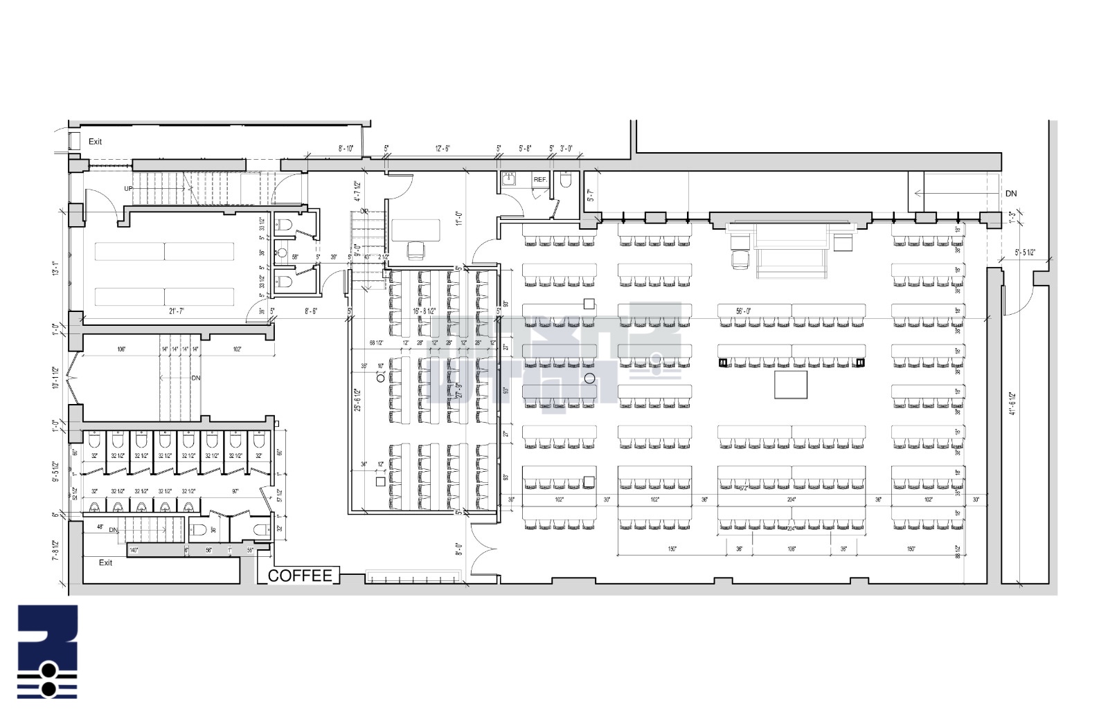
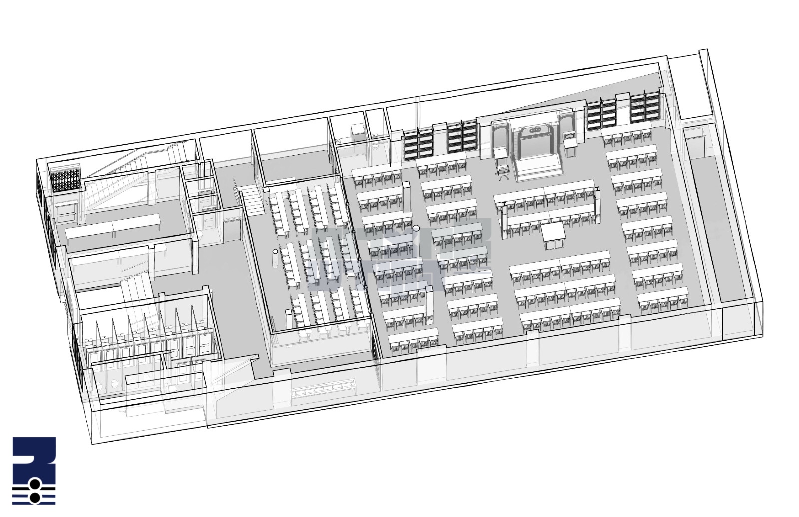
אצינד ווערט אויפגענומען די פרייליכע נייעס אז די הנהלת הקהילה האט געשלאסן די מקח ארויסצונעמען א בנין רחבת ידים אויף פרענקלין עוועניו, צווישן פארק עוועניו און פלאשינג, ממש ביים אנהייב פון די ניי וויליאמסבורג געגנט, די נייע פראכטפולע בנין ווערט אצינד רענאווירט מיט א הערליכע לופטיגע היכל בית המדרש אויף די צענטראלע שטאק, הערליכע שטיבלעך צום דאווענען און א מקוה און אלע באדערפענישן, וואס וועט בעז"ה צוברענגען א ריכטיגע הרחבת הדעת און א געשמאקע מקום תפילה פאר די גאנצע אומגעגנט.

אויף די העכסטע שטאק העכער די ווייבער שוהל, ווערט איינגערישט א באקוועמע דירה פארן רבי'ן שליט"א און די משפחה, א פראווע צימער וואו דער רבי זאל קענען געזעגענען די חסידים, און אלעס וואס פעלט זיך אויס פאר א בית גדול וקדוש שמגדלין בו תורה ותפילה.

די פארגאנגענע שבת שקלים איז צום ווידעראמאל ארויסגעדינגען געווארן די זאלן פון עידן פעלס ווי עס געפראוועט געווארן די תפילות, דורכאויס שבת. צו ראש חודש בענטשן, מוסף אין אור פניך לכבוד שבת שקלים איז די רבי שליט"א צוגעגאנגען צום עמוש בהתלהבות אש קודש.

פאר קריאת התורה האט אויפגעטרעטן די גבאי הבית מדרש הרב לייבל וויינבערגער וועלכע האט מבשר געווען די בשורה טובה פון הרחבת גבולי הקדושה, אין ביי די עליות איז אריינגעקומען די פאנטאסטישע סכום פון קרוב צו צוויי הונדערט טויזנט דאלאר פארן נייעם קרן הבנין פונעם נייעם ביהמ"ד.

בורא עולם בקנין השלם זה הבנין.

Blog Image
Blog Image
Blog Image
Blog Image

שרייבט א קאמענט

-
00:00
00:00
Update Required Flash plugin
-
00:00
00:00